Пробоотборник для газовых проб ПГО-10000 М с манометром
Пробоотборник для газовых проб ПГО-10000 М с манометром предназначен для отбора проб сжиженных углеводородных газов (ГОСТ 14 921−78).
Пробоотборник применяется для отбора углеводородных газов, находящихся под избыточным давлением собственных паров из стационарных емкостей (цилиндрических, шаровых, железнодорожных цистерн, баллонов, а также из трубопроводов при перекачке газов путем продувки его сжиженным газом). Пробоотборник используется для отбора проб сжиженных углеводородных газов, микропримесей (общей серы, сероводорода, влаги и др.), углеводородного состава сжиженных газов.
Рабочее давление: До 5,0 (50,9) МПа (кгс/см²)
Испытательное давление: 6,0 (61,2) МПа (кгс/см²)
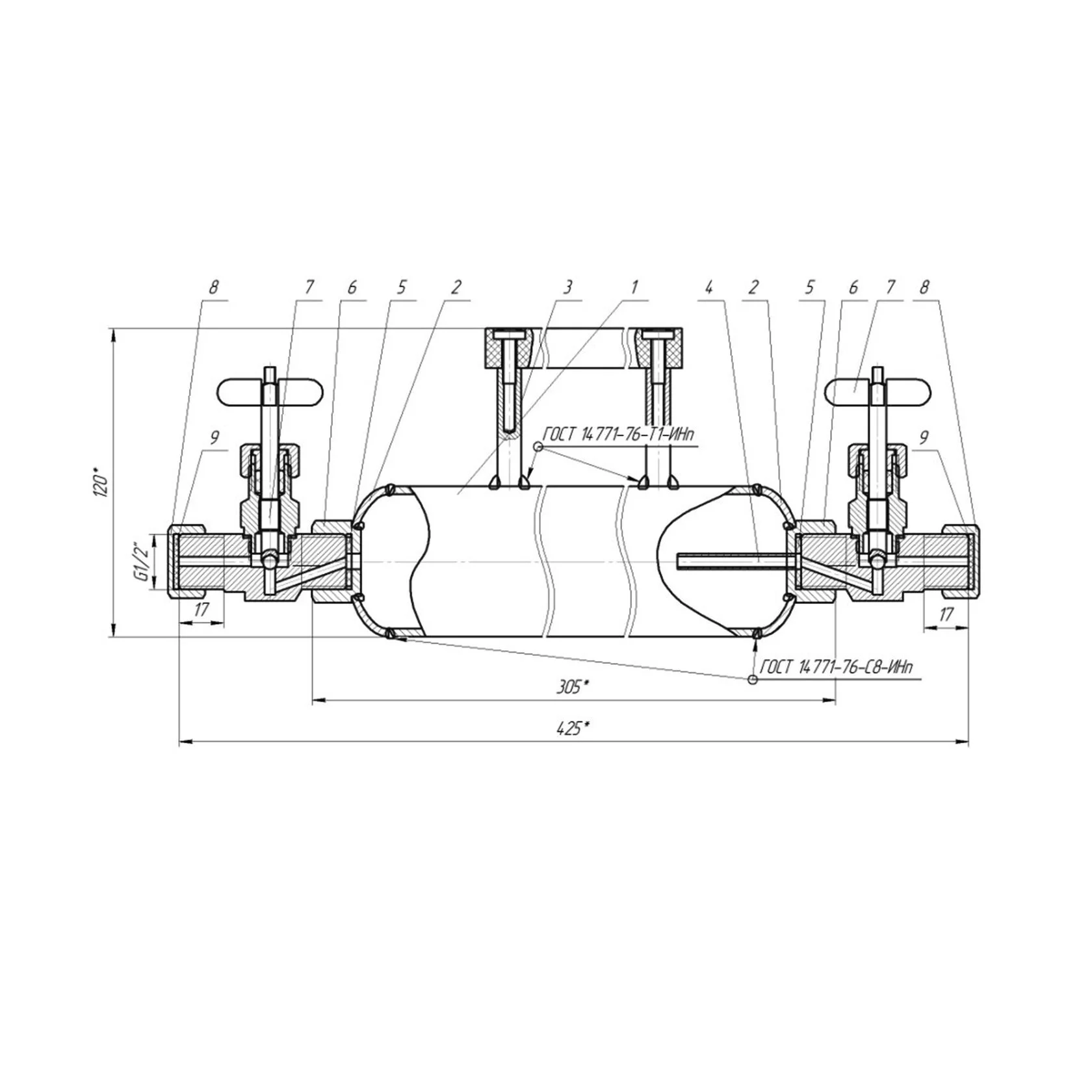
Рабочий объем: 500 см³
Материал пробоотборника: 12Х18Н10Т ГОСТ 5632-2014
Резьба присоединительная: G1/2˝ ГОСТ 6357-81
Герметичность: утечка не допускается
Температура для отбора проб: -35…+80°С
Климатическое исполнение по ГОСТ 15150-69: УХЛ 4.2
Присоединение: Резьба трубная цилиндрическая наружная G1/2˝ ГОСТ 6357-81
Изготовитель гарантирует соответствие пробоотборников ПГО-400 ГОСТ 14 921–78 и ТУ 4318−013−62 222 403−2016, работу пробоотборников при соблюдении условий эксплуатации, указанных в настоящем руководстве по эксплуатации. Хранение на складах осуществляется при отсутствии в окружающем воздухе газов и паров, вызывающих коррозию.
Гарантийный срок эксплуатации — 12 месяцев со дня ввода в эксплуатацию.
Пробоотборник ПГО-400 – 1 шт.
Вентиль ВИ-64-6 ТУ 3742-007-62222403-2016 – 2 шт.
Гайка-заглушка G1/2˝ – 2 шт.
Прокладка присоединительная – 2 шт.
Прокладка бокового штуцера (мембрана) – 10 шт.
Ручка в сборе – 1 шт.
Паспорт – 1 шт.
Упаковка – 1 шт.
